FMC型分室脈沖袋式除塵器

脈沖清灰袋式除塵器-FMC型分室脈沖袋式除塵器
1、特點:
(1)濾袋清灰采用程序控制離線脈沖方式,清灰效率高,除塵效率高。
(2)采用不同材質濾袋和殼體表面特殊處理,可以除去不同性質的粉塵。
(3)完善的控制系統和可靠的予警功能,使除塵系統適應復雜多變的工作環境。
2、使用:
(1)水泥行業:機立窯、烘干機、磨機、包裝機、粉碎機等除塵。
(2)筑路機械:瀝青攪合站等設備除塵。
(3)機械加工、鑄造、冶金、電力、化工、礦山、糧食加工等行業除塵。

3、型號及性能參數
參數 型號 | 過濾 面積 m2 | 處理 風量 m3/h | 入口 濃度 g/m3 | 過濾 風速 m/min | 運行 阻力 Pa | 出口 濃度 mg/m3 | 壓縮氣 體耗量 m3/h | 濾袋 規格 | 濾袋 條數 | 外形尺寸 長x寬x高 |
4x16 | 64 | 4300-8640 | <1000 | 1.5-3 | 700-1600 | <50 | 0.2 | ?126x 2500 | 64 | 1680x2450X4939 |
4x24 | 96 | 6500-13000 | 0.3 | 98 | 2400x2600x4939 | |||||
4x32 | 128 | 8300-17280 | 0.35 | 128 | 3120x2700x4939 | |||||
5x32 | 160 | 11000-23000 | 0.35 | 160 | 3900x2750x4959 | |||||
4x45 | 180 | 12400-24300 | 0.6 | 180 | 3840x3000x5135 | |||||
5x45 | 225 | 16500-32400 | 0.6 | 225 | 4800x3130x5135 | |||||
6x45 | 270 | 20000-40500 | 0.6 | 270 | 5760x3330x5135 | |||||
5x60 | 300 | 21000-43200 | 0.8 | 300 | 4800x3920x5698 | |||||
6X60 | 360 | 27000-54000 | 0.8 | 360 | 5760X4120x5698 | |||||
5x83 | 415 | 29620-60000 | 1.0 | ?126x 3500 | 300 | 4808x4218x6698 | ||||
6x83 | 498 | 37400-75000 | 1.0 | 360 | 5768x4418x6698 | |||||
7x83 | 581 | 44000-90000 | 1.0 | 420 | 6728x3768x6698 | |||||
5x128 | 640 | 46000-92000 | 1.5 | ?126x 4500 | 360 | 5708x3768x8785 | ||||
6x128 | 768 | 57600-115000 | 1.5 | 432 | 6848x3768x8785 | |||||
7x128 | 896 | 69000-138000 | 2.5 | 504 | 7988x3768x8785 | |||||
8x128 | 1024 | 80600-161000 | 2.5 | 576 | 9128x3768x8785 | |||||
9x128 | 1152 | 92160-185000 | 2.5 | 648 | 10268x3768x8785 | |||||
5x128x2 | 1280 | 104000-207000 | 3.2 | 720 | 5708x7936x8785 | |||||
6x128x2 | 1536 | 127000-254000 | 3.2 | 876 | 6848x7936x8785 | |||||
7x128x2 | 1792 | 150000-300000 | 3.2 | 1008 | 7988x7936x8785 | |||||
8x128x2 | 2048 | 173000-345000 | 3.2 | 1152 | 9128x7936x8785 | |||||
9x128x2 | 2304 | 196000-392000 | 3.2 | 1296 | 10268x7936x8785 | |||||
10x128x2 | 2560 | 219000-438000 | 3.2 | 1440 | 11408X7936X8785 |
注:除以上規格外,我廠可為用戶現場設計其它型號。
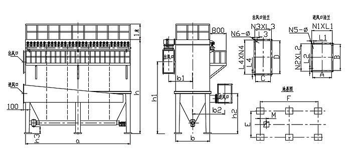
| a | b | h | b1 | b2 | h1 | h2 | h3 | A | B | N1XL1 | N4XL4 | N5-Φ | C | D | N3XL3 | N4XL4 | N6-Φ | E | F | M | |
型號 | ||||||||||||||||||||||
FMC 4×16 | 1680 | 1500 | 4939 | 1000 | 1150 | 4090 | 1830 | 500 | 300 | 400 | 3×117 | 3×150 | 12-Φ11 | 300 | 400 | 3×117 | 3×150 | 12-Φ11 | 1350 | 1530 | 中間下料 | |
FMC 4×24 | 2400 | 1500 | 4939 | 1025 | 1200 | 3970 | 1875 | 500 | 400 | 450 | 3×150 | 4×125 | 14-Φ11 | 350 | 520 | 3×133 | 4×143 | 14-Φ11 | 1350 | 2250 | 100 | |
FMC 4×32 | 3120 | 1500 | 4939 | 1050 | 1225 | 3890 | 1915 | 500 | 450 | 530 | 4×125 | 4×145 | 16-Φ11 | 400 | 600 | 3×150 | 5×130 | 16-Φ11 | 1350 | 2970 | 100 | |
FMC 5×32 | 3900 | 1500 | 4939 | 1050 | 1250 | 3810 | 1990 | 500 | 500 | 640 | 5×110 | 5×138 | 20-Φ11 | 400 | 800 | 3×150 | 7×122 | 20-Φ11 | 1350 | 3750 | 100 | |
FMC 4×45 | 3840 | 1680 | 5135 | 1175 | 1340 | 3915 | 2135 | 500 | 500 | 680 | 5×110 | 6×122 | 22-Φ11 | 470 | 720 | 4×130 | 6×128 | 20-Φ11 | 1530 | 3690 | 100 | |
FMC 5×45 | 4800 | 1680 | 5135 | 1190 | 1390 | 3825 | 2150 | 500 | 600 | 750 | 5×130 | 6×133 | 22-Φ11 | 500 | 900 | 5×110 | 8×119 | 26-Φ11 | 1530 | 4650 | 100 | |
FMC 6×45 | 5760 | 1680 | 5135 | 1265 | 1390 | 3845 | 2225 | 500 | 700 | 800 | 6×125 | 7×122 | 26-Φ11 | 650 | 860 | 5×140 | 7×130 | 24-Φ11 | 1530 | 5610 | 100 | |
FMC 5×60 | 4800 | 2268 | 5698 | 1560 | 1684 | 4318 | 2330 | 500 | 700 | 850 | 6×125 | 7×129 | 26-Φ11 | 650 | 920 | 5×140 | 7×139 | 24-Φ11 | 2118 | 4650 | 450 | |
FMC 6×60 | 5760 | 2268 | 5698 | 1610 | 1734 | 4278 | 2430 | 500 | 800 | 950 | 7×122 | 8×125 | 30-Φ11 | 750 | 1000 | 6×133 | 8×131 | 28-Φ11 | 2118 | 5610 | 450 | |
FMC 5×83 | 4808 | 2268 | 6698 | 1634 | 1784 | 5098 | 2525 | 300 | 800 | 1000 | 7×122 | 8×131 | 30-Φ11 | 800 | 1000 | 7×122 | 8×131 | 30-Φ11 | 2118 | 4658 | 540 | |
FMC 6×83 | 5768 | 2268 | 6698 | 1634 | 1884 | 4973 | 2528 | 300 | 1000 | 1000 | 8×131 | 8×131 | 32-Φ11 | 800 | 1250 | 7×122 | 10×130 | 34-Φ11 | 2118 | 5618 | 540 | |
FMC 7×83 | 6728 | 2268 | 6698 | 1634 | 1934 | 4848 | 2578 | 300 | 1100 | 1100 | 9×128 | 9×128 | 36-Φ11 | 800 | 1500 | 7×122 | 11×141 | 36-Φ11 | 2118 | 6578 | 540 |
尺寸 | a | F | h1 | h3 | A | B | N1*L1 | N2*L2 | N5-Φ | C | D | N3*L3 | N4*L4 | N6-Φ |
型號 | ||||||||||||||
5*128 | 5708 | 5454 | 6735 | 4905 | 600 | 2100 | 5*130 | 16*135 | 42-Φ11 | 800 | 1600 | 6*142 | 12*138 | 36-Φ11 |
6*128 | 6848 | 6594 | 6535 | 5155 | 600 | 2600 | 5*130 | 20*133 | 50-Φ11 | 800 | 2000 | 6*142 | 15*137 | 42-Φ11 |
7*128 | 7988 | 7734 | 6335 | 5455 | 600 | 3200 | 5*130 | 25*130 | 60-Φ11 | 800 | 2400 | 6*142 | 18*136 | 48-Φ11 |
8*128 | 9128 | 8874 | 6135 | 5705 | 600 | 3700 | 5*130 | 27*139 | 64-Φ11 | 800 | 2800 | 6*142 | 19*150 | 50-Φ11 |
9*128 | 10268 | 10014 | 5985 | 5905 | 600 | 4100 | 5*130 | 32*130 | 74-Φ11 | 800 | 3100 | 6*142 | 21*150 | 54-Φ11 |
FMC型分室脈沖袋式除塵器 本文被閱讀 6100 次